Проект каркасного дома № 2

+7 (495) 101-12-89
+7 (495) 1311289
Обратный звонок
95 м2
2 этажа

Каркасный дом из SIP панелей

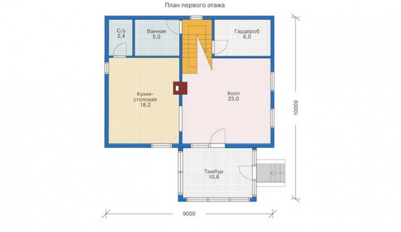
Экспликация 1 этажа Экспликация мансардного этажа
 Гостиная - 23,8 м2   Комната - 12,7 м2
 Кухня - столовая - 13,1 м2   Комната - 12,7 м2
 Прихожая - 7,8 м2   Гостиная  - 11,0 м2
 С/у - 3,0 м2   Холл - 6,1 м2
 Кладовая - 1,7 м2   Кладовая - 2,7 м2
  C/у - 1,9 м2

Цены на домокомплект, теплый контур и под ключ

Стеновой комплект без сборки

0 руб.
Что входит в комплектацию?
  • Клееный брус Архангельская Сосна 202мм
  • Нарезка узловых соединений (чаш)
  • Сверловка отверстий под шпильки
  • Сверление скрытой электропроводки
  • Обработка антисептиком
  • Упаковка в гидроизоляционную пленку
  • Погрузка на автотраснпорт

Домокомплект со сборкой

0 руб.
Что входит в комплектацию?
  • Клееный брус Архангельская Сосна 202мм
  • Сборка домокомплекта
  • Пружинный узел сила
  • Утеплитель Политерм
  • Гидроизоляция
  • Комплект крепежей и материалов
  • Разгрузка

Тёплый контур

30 000 руб.
Что входит в комплектацию?
  • Металлические винтовые сваи с оголовком
  • Домокомплект из клееного бруса 190hх202
  • Лаги пола клееные или сухая доска 50х200
  • Кровля металлочерепица GL Classic Satin 0,5
  • Утепление кровли 200мм Extra
  • Разгрузка всех материалов
  • Без учета организации строительной площадки

Под ключ

30 000 руб.
Что входит в комплектацию?

Что входит в комплектацию «под ключ»

  • Всё что входит в теплый контур
  • Черновые и чистовые полы
  • Потолки, свесы и карнизы
  • Стены внутри и снаружи (шлифовка, грунтовка, покраска)
  • Разводка инженерных систем (монтаж электрики, отопления, водоснабжения и канализации)
  • Входные и межкомнатные двери
  • Без учета организации строительной площадки и накладных
*Также Вы можете заменить или добавить комплектацию
 руб.
ИЛИ

Комплектация "теплый контур"

ВсеФундаментСтеныКровляОкна
Фундамент
Расстановка свай согласно плана фундамента (бесплатно)
Геодезические работы
  • Разбивка осей
  • Нивелировка
  • Вынос осей внатуру
  • Планировочные работы
Винтовая свая с антикоррозийной защитой
  • Свая диаметром 108мм высотой 3000 мм
  • Завинчивание свай вручную, машинкой либо с использованием спецтехники
  • Заливка свай бетоном м300
  • Выведение свай в горизонтальный уровень
  • Оголовок 200х200мм
  • Приварка оголовков
  • Покраска швов
Обвязочный брус рассчитывается дополнительно
  • Брус есстественной влажности Сосна/Ель 200х200
  • Монтаж обвязочного бруса
  • Крепежи (анкера, саморезы)
  • Антисептик Неомид
  • Антисептирование обвязочного бруса

Расстановка свай согласно плана фундамента (бесплатно)
Геодезические работы
Доставка свай рассчитывается отдельно

  • Разбивка осей
  • Нивелировка
  • Вынос осей внатуру
  • Планировочные работы
Железобетонные сваи изготовленные в соответствии ГОСТ 19804-2021
  • Ж/б свая диаметром 150х150 высотой 3000 мм
  • Забивка свай с использованием спецтехники (копер)
  • Оголовок 200х200мм
  • Прикручивание оголовков
Обвязочный брус рассчитывается дополнительно
  • Брус есстественной влажности Сосна/Ель 200х200
  • Монтаж обвязочного бруса
  • Крепежи (анкера, саморезы)
  • Антисептик Неомид
  • Антисептирование обвязочного бруса

Расстановка свай согласно плана фундамента (бесплатно)
Геодезические работы
Доставка свай рассчитывается отдельно

  • Разбивка осей
  • Нивелировка
  • Вынос осей внатуру
  • Планировочные работы
Железобетонные сваи изготовленные в соответствии ГОСТ 19804-2021
  • Ж/б свая диаметром 200х200 высотой 3000 мм
  • Забивка свай с использованием спецтехники (копер)
  • Оголовок 250х250мм
  • Прикручивание оголовков
Обвязочный брус рассчитывается дополнительно
  • Брус есстественной влажности Сосна/Ель 200х200
  • Монтаж обвязочного бруса
  • Крепежи (анкера, саморезы)
  • Антисептик Неомид
  • Антисептирование обвязочного бруса
Геологические изыскания (предоставляет заказчик)
Проектная документация фундамент КЖ
Геодезические работы
  • Разбивка осей
  • Нивелировка
  • Вынос осей внатуру
  • Планировочные работы
Устройство ж/б стен толщина 300мм, высота 800мм
  • Разработка грунта под песчаную подушку ростверка
  • Обустройство подушки 40-60см
  • Щебень 20-40 для подушки
  • Песок карьерный для подушки
  • Трамбовка подушки
  • Подготовка опалубки
  • Вязка арматуры
  • Заливка бетона
  • Бетон, марка В 22,5 М 300 (с доставкой), в зимний период с добавками
  • Услуги бетононасоса 1-2 выезда
  • Арматура 6; 12мм (с доставкой)
  • Проволка для вязки арматуры
  • Доска на опалубку
  • Геотекстиль
  • Гидроизояционная мембрана Planter
  • Инструмент: глубинный вибратор, виброплита, мотобур, нивелир, болгарки, шуруповерты, перфоратор, гибочный станок, сварочный аппарат
  • Крепеж (диски для болгарки, гвозди, шпильки, саморезы, уголки)
Геологические изыскания (предоставляет заказчик)
Проектная документация фундамент КЖ
Геодезические работы
  • Разбивка осей
  • Нивелировка
  • Вынос осей внатуру
  • Планировочные работы
Устройство ж/б стен толщина 300мм, высота 600мм
  • Разработка грунта под песчаную подушку ростверка
  • Обустройство подушки 40-60см
  • Щебень 20-40 для подушки
  • Песок карьерный для подушки
  • Трамбовка подушки
  • Подготовка опалубки
  • Вязка арматуры
  • Заливка бетона
  • Бетон, марка В 22,5 М 300 (с доставкой), в зимний период с добавками
  • Услуги бетононасоса 1-2 выезда
  • Арматура 6; 12мм (с доставкой)
  • Проволка для вязки арматуры
  • Доска на опалубку
  • Геотекстиль
  • Гидроизояционная мембрана Planter
  • Инструмент: глубинный вибратор, виброплита, мотобур, нивелир, болгарки, шуруповерты, перфоратор, гибочный станок, сварочный аппарат
  • Крепеж (диски для болгарки, гвозди, шпильки, саморезы, уголки)
Буронабивные сваи 1,8 м, диаметр 250 мм
  • Аренда бурильной машины с доставкой
  • Вязка арматуры
  • Подготовка опалубки
  • Заливка бетона
  • Бетон, марка В 22,5 М 300 (с доставкой)
  • Арматура 6; 12мм (с доставкой)
  • Вязальная проволока
Плита 100 мм по обратной песчаной засыпке
  • Засыпка песчаной подушки под стяжку
  • Песок для песчаной подушки под стяжку
  • Подготовка опалубки
  • Вязка арматуры
  • Заливка бетона
  • Бетон, марка В 22,5 М 300 (с доставкой)
  • Услуги бетононасоса
  • Арматура 10мм (с доставкой)
  • Проволка для вязки арматуры
Общая высота фундамента 550мм, толщина плита 25см
Геологические изыскания
(предоставляет заказчик)
Проектная документация фундамент (КЖ предоставляется)
Геодезические работы
  • Разбивка осей
  • Нивелировка
  • Вынос осей внатуру
  • Планировочные работы
Устройство ж/б стен толщина 400мм, высота 300мм
  • Разработка грунта под песчаную подушку ростверка
  • Обустройство подушки 40-60см
  • Щебень 2040 для подушки
  • Песок речной для подушки
  • Трамбовка подушки
  • Подготовка опалубки
  • Вязка арматуры
  • Заливка бетона
  • Бетон, марка В 22,5 М 300 (с доставкой)
  • Услуги бетононасоса
  • Арматура 6; 12мм (с доставкой)
  • Проволка для вязки арматуры
  • Доска на опалубку
  • Геотекстиль
  • Гидроизояционная мембрана Planter
  • Крепеж (гвозди, шпильки, саморезы, уголки)
Плита 250 мм по обратной песчаной засыпке
  • Засыпка песчаной подушки под плиту
  • Песок для песчаной подушки под плиту
  • Подготовка опалубки
  • Вязка арматуры
  • Заливка бетона
  • Бетон, марка В 22,5 М 300 (с доставкой)
  • Услуги бетононасоса
  • Арматура 12мм (с доставкой)
  • Проволка для вязки арматуры
Утепление рассчитывается отдельно
Геологические изыскания (предоставляет заказчик)
Проектная документация фундамент (оплачивается отдельно при необходимости)
Геодезические работы
  • Разбивка осей
  • Нивелировка
  • Вынос осей внатуру
  • Планировочные работы
Плита 250 мм по обратной песчаной засыпке
  • Разработка грунта под плиту
  • Засыпка песчаной подушки под плиту
  • Песок для песчаной подушки под плиту
  • Подготовка опалубки
  • Вязка арматуры
  • Заливка бетона
  • Бетон, марка В 22,5 М 300 (с доставкой)
  • Пленка ПВХ
  • Услуги бетононасоса
  • Арматура 12мм (с доставкой)
  • Проволка для вязки арматуры плиты
Устройство ж/б стен толщина 300мм, высота 400мм
  • Подготовка опалубки
  • Вязка арматуры
  • Заливка бетона
  • Бетон, марка В 22,5 М 300 (с доставкой)
  • Услуги бетононасоса
  • Арматура 6; 12мм (с доставкой)
  • Проволка для вязки арматуры
  • Доска на опалубку
  • Крепеж (гвозди, шпильки, саморезы, уголки)
30 000 руб.
Домокомплект с лагами если плита
Стеновой комплект если фундамент плита
  • Клееный брус 190(h)х202мм Архангельская Сосна/Ель наружные и внутренние стены
  • Обработка антисептирующими средствами Неомид
  • Обработка торцов спец грунтом Teknos JRM
  • Заводские отверстия под скрытую электропроводку
  • Европейский профиль бруса
  • Столбы клееные видовые 200х200мм
  • Компенсаторы усадки на колонны
  • Пружинный узел сила 200мм (оригинал)
  • Шпильки - металлические оцинкованные
  • Утеплитель Аватерм в чаши 15х200мм
  • Утеплитель Аватерм межвенцовый 10х60мм
  • Комплект крепежей
  • Все расходные материалы (гвозди, саморезы, пена, скобы, крепление)
  • Обработка антисептиком
  • Погрузка и упаковка в транспортную пленку
  • Укрывной материал
  • Балки клееные для опор кровли
  • Конек из двойного клееного бруса
  • Подкладочная доска
  • Рабочий проект КД
Монтаж стенового комплекта
  • Гидроизоляция ростверка Технониколь
  • Монтаж подкладочной доски
  • Анкеровка подкладочной доски к фундаменту
  • Монтаж стен клееного бруса
  • Монтаж столбов
  • Монтаж конька
  • Доставка по МО еврофурами
  • Разгрузка автокраном или перегрузка манипулятором
Монтаж лаг пола и перекрытий
  • Лаги пола и перекрытия сухие или клееные
  • Материал для лаг пола (опоры, крепежи, саморезы)
  • Лестница межэтажная черновая однопролетная
Леса
  • Доска обрезная сорт 2-3
  • Монтаж и демонтаж лесов
Контроль сборки инженером технического надзора
Стеновой комплект с учетом фундамента плита
  • Клееный брус 190(h)х160мм Сосна/Ель наружные и внутренние стены
  • Европейский профиль бруса
  • Столбы клееные видовые 180х200мм
  • Компенсаторы усадки на колонны
  • Пружинный узел сила 200мм (оригинал)
  • Шпильки - металлические оцинкованные
  • Утеплитель Аватерм в чаши 15х200мм
  • Утеплитель Аватерм межвенцовый 10х60мм
  • Комплект крепежей
  • Все расходные материалы (гвозди, саморезы, пена, скобы, крепление)
  • Обработка антисептиком
  • Погрузка и упаковка в транспортную пленку
  • Укрывной материал
  • Балки клееные для опор кровли
  • Конек из двойного клееного бруса
  • Подкладочная доска
  • Рабочий проект КД
Монтаж стенового комплекта
  • Гидроизоляция ростверка Технониколь
  • Монтаж подкладочной доски
  • Анкеровка подкладочной доски к фундаменту
  • Монтаж стен клееного бруса
  • Монтаж столбов
  • Монтаж конька
  • Доставка еврофурами расчитывается отдельно
  • Разгрузка автокраном или перегрузка манипулятором расчитывается отдельно
Монтаж лаг пола и перекрытий
  • Лаги пола и перекрытия сухие или клееные
  • Материал для лаг пола (опоры, крепежи, саморезы)
  • Лестница межэтажная черновая однопролетная
Леса
  • Доска обрезная сорт 2-3 расчитывается отдельно
  • Монтаж и демонтаж лесов расчитывается отдельно
Контроль сборки инженером технического надзора
Стеновой комплект если фундамент плита
  • Клееный брус 190(h)х202мм без сучков наружные и внутренние стены
  • Заводские отверстия под скрытую электропроводку
  • Европейский профиль бруса
  • Столбы клееные видовые 200х200мм
  • Компенсаторы усадки на колонны
  • Пружинный узел сила 200мм (оригинал)
  • Шпильки - металлические оцинкованные
  • Утеплитель Аватерм в чаши 15х200мм
  • Утеплитель Аватерм межвенцовый 10х60мм
  • Комплект крепежей
  • Все расходные материалы (гвозди, саморезы, пена, скобы, крепление)
  • Обработка антисептиком
  • Обработка торцов Teknos JRM
  • Погрузка и упаковка в транспортную пленку
  • Укрывной материал
  • Балки клееные для опор кровли
  • Конек из двойного клееного бруса
  • Подкладочная доска Лиственница
  • Рабочий проект КД
Монтаж стенового комплекта
  • Гидроизоляция ростверка Технониколь
  • Монтаж подкладочной доски
  • Анкеровка подкладочной доски к фундаменту
  • Монтаж стен клееного бруса
  • Монтаж столбов
  • Монтаж конька
  • Доставка по МО фурами по 35 кубов
  • Разгрузка автокраном или перегрузка манипулятором
Монтаж лаг пола и перекрытий
  • Лаги пола и перекрытия сухие или клееные
  • Материал для лаг пола (опоры, крепежи, саморезы)
  • Лестница межэтажная черновая однопролетная
Леса
  • Доска обрезная сорт 2-3
  • Монтаж и демонтаж лесов
Контроль сборки инженером технического надзора
Стеновой комплект если фундамент плита
  • Клееный брус 190(h)х202мм Сибирский Кедр наружные и внутренние стены
  • Заводские отверстия под скрытую электропроводку
  • Европейский профиль бруса
  • Столбы клееные видовые 200х200мм
  • Компенсаторы усадки на колонны
  • Пружинный узел сила 200мм (оригинал)
  • Шпильки - металлические оцинкованные
  • Утеплитель Аватерм в чаши 15х200мм
  • Утеплитель Аватерм межвенцовый 10х60мм
  • Комплект крепежей
  • Все расходные материалы (гвозди, саморезы, пена, скобы, крепление)
  • Обработка антисептиком
  • Погрузка и упаковка в транспортную пленку
  • Укрывной материал
  • Балки клееные для опор кровли
  • Конек из двойного клееного бруса
  • Подкладочная доска Лиственница
  • Рабочий проект КД
Монтаж стенового комплекта
  • Гидроизоляция ростверка Технониколь
  • Монтаж подкладочной доски
  • Анкеровка подкладочной доски к фундаменту
  • Монтаж стен клееного бруса
  • Монтаж столбов
  • Монтаж конька
  • Доставка по МО фурами по 35 кубов
  • Разгрузка автокраном или перегрузка манипулятором
Монтаж лаг пола и перекрытий
  • Лаги пола и перекрытия сухие или клееные
  • Материал для лаг пола (опоры, крепежи, саморезы)
  • Лестница межэтажная черновая однопролетная
Леса
  • Доска обрезная сорт 2-3
  • Монтаж и демонтаж лесов
Контроль сборки инженером технического надзора
0 руб.
Кровля
Стропильная система
  • Рабочий проект КД (Кровля)
  • Стропила доска 50х200 или клееный брус 80х180 и брусок 50
  • Ендовы из клееного бруса
  • Антисептирование
  • Скользящая опора
  • Крепеж: шпилька, гайка, шайба, уголки, гвозди, саморезы
  • Монтаж стропил на скользящие опоры
  • Монтаж ендов
Утепление
  • Гидро-ветрозащитная мембрана Технониколь супердиффузионная
  • Пародиффузионная мембрана с проклейкой швов и примыканий лентой Delta
  • Утеплитель 200мм Изорок, Роквулл
  • Монтаж утеплителя с перекрестным утеплением
  • Нижняя и верхняя обрешетки вентилируемой кровли
  • Контробрешётка
  • Строганная контррейка
  • Монтаж обрешетки и контробрешетки
Кровельный материал
  • Металлочерепица Grand Line Satin 0,5мм
  • Комплектующие кровельного покрытия для черепицы
  • Элементы для вентиляции, аэратор скатный, металлические планки
  • Водосточная система
  • Система снегозадержания
  • Монтаж кровельного материала
  • Монтаж снегозадержателя
  • Монтаж водосточной системы

Доставка
Контроль инженером технического надзора

Стропильная система
  • Рабочий проект КД (Кровля)
  • Стропила доска 50х200 или клееный брус 80х180 и брусок 50
  • Ендовы из клееного бруса
  • Антисептирование
  • Скользящая опора
  • Крепеж: шпилька, гайка, шайба, уголки, гвозди, саморезы
  • Монтаж стропил на скользящие опоры
  • Монтаж ендов
Утепление
  • Гидро-ветрозащитная мембрана Технониколь супердиффузионная
  • Пародиффузионная мембрана с проклейкой швов и примыканий лентой Delta
  • Утеплитель 200мм Изорок, Роквулл
  • Монтаж утеплителя с перекрестным утеплением
  • Нижняя и верхняя обрешетки вентилируемой кровли
  • Контробрешётка
  • Строганная контррейка
  • Монтаж обрешетки и контробрешетки
Кровельный материал
  • Многослойная черепица Shinglas Кантри
  • Комплектующие кровельного покрытия для черепицы
  • Фанера Кроноспан
  • Водосточная система
  • Монтаж кровельного материала
  • Монтаж снегозадержателя

Доставка
Контроль инженером технического надзора

Стропильная система
  • Рабочий проект КД (Кровля)
  • Стропила доска сухая или клееный брус 80х190
  • Ендовы доски или клееный брус
  • Антисептирование
  • Скользящая опора
  • Крепеж: шпилька, гайка, шайба, уголки, гвозди, саморезы
  • Монтаж стропил на скользящие опоры
  • Монтаж ендов
Утепление
  • Гидро-ветрозащитная мембрана Грандлайн супердиффузионная
  • Пародиффузионная мембрана с проклейкой швов и примыканий лентой Delta
  • Утеплитель 200мм Роквулл Скандик
  • Монтаж утеплителя с перекрестным утеплением
  • Нижняя и верхняя обрешетки вентилируемой кровли
  • Контробрешётка
  • Строганная контррейка
  • Монтаж обрешетки и контробрешетки
Кровельный материал
  • Кликфальц Grand Line 0,5 Drap
  • Комплектующие кровельного покрытия для черепицы
  • Водосточная система
  • Монтаж кровельного материала
  • Монтаж водосточной системы

Доставка
Контроль инженером технического надзора

Стропильная система
  • Рабочий проект КД (Кровля)
  • Стропила клееный брус 80х180 и брусок 50
  • Ендовы из клееного бруса
  • Антисептирование
  • Скользящая опора
  • Крепеж: шпилька, гайка, шайба, уголки, гвозди, саморезы
  • Монтаж стропил на скользящие опоры
  • Монтаж ендов
Утепление
  • Гидро-ветрозащитная мембрана Технониколь супердиффузионная
  • Пародиффузионная мембрана с проклейкой швов и примыканий лентой Delta
  • Утеплитель 200мм Изорок, Роквулл
  • Монтаж утеплителя с перекрестным утеплением
  • Нижняя и верхняя обрешетки вентилируемой кровли
  • Контробрешётка
  • Строганная контррейка
  • Монтаж обрешетки и контробрешетки
Кровельный материал
  • Цементно-песчанная черепица Браас Франкфуртская
  • Комплектующие кровельного покрытия для черепицы
  • Водосточная система
  • Монтаж кровельного материала
  • Монтаж водосточной системы

Доставка
Контроль инженером технического надзора

0 руб.
Окна
Подготовка проемов, подрезка, вставка окосячки и обсадной коробки
  • Доска сухая строганная 50х200
  • Брусок сухой строганный 50х50
  • Герметик акриловый морозостойкий
  • Утеплитель Аватерм
  • Саморезы желтые
Подготовка проемов, подрезка, вставка окосячки и обсадной коробки
  • Доска сухая строганная 50х200
  • Брусок сухой строганный 50х50
  • Герметик акриловый морозостойкий
  • Утеплитель Аватерм
  • Саморезы желтые
Установка окон с фурнитурой и москитной сеткой, регулировка створок
  • Окна комплект Rehau Grazio 60мм
  • Пена монтажная под пистолет
  • Пластина монтажная (под пластиковые окна)
  • Саморезы черные с крупной резьбой
Подготовка проемов, подрезка, вставка окосячки и обсадной коробки
  • Доска сухая строганная 50х200
  • Брусок сухой строганный 50х50
  • Герметик акриловый морозостойкий
  • Утеплитель Аватерм
  • Саморезы желтые
Установка окон с фурнитурой и москитной сеткой, регулировка створок
  • Окна комплект Rehau Deliht 70мм c одной ламинацией
  • Пена монтажная под пистолет
  • Пластина монтажная (под пластиковые окна)
  • Саморезы черные с крупной резьбой
Подготовка проемов, подрезка, вставка окосячки и обсадной коробки
  • Доска сухая строганная 50х200
  • Брусок сухой строганный 50х50
  • Герметик акриловый морозостойкий
  • Утеплитель Аватерм
  • Саморезы желтые
Установка окон с фурнитурой и москитной сеткой, регулировка створок
  • Окна комплект Rehau DIAMANT 80мм c одной ламинацией
  • Пена монтажная под пистолет
  • Пластина монтажная (под пластиковые окна)
  • Саморезы черные с крупной резьбой
0 руб.

Комплектация "под ключ"

Все Черновые полы первого этажа Черновые полы второго этажа Чистовые полы первого этажа Чистовые полы второго этажа Терраса и крыльцо Потолки Свесы и карнизы Торцевые и лобовые доски Стены внутри Стены снаружи Каркасные перегородки Двери входные Двери межкомнатные Разводка ОВ и ВК Разводка электрики
Черновые полы первого этажа
Монтаж черновой обрешетки под лагами (шаг 350 мм в просвете)
  • Доска сухая строганная
  • Саморезы желтые с крупной резьбой
Утепление полов в 2 слоя (200мм) с гидроизоляцией и пароизоляцией (с проклейкой стыков)
  • Пароизоляция Ютафол H110 Стандарт
  • Ветрозащитная паропроницаемая мембрана Изоспан
  • Односторонняя соединительная лента
  • Скобы для степплера
  • Плитный базальтовый утеплитель Технониколь Техноакустик 50х600х1200мм
Монтаж обрешетки над лагами с шагом 300 мм в просвете
  • Доска сухая строганная
  • Саморезы черные с крупной резьбой
Монтаж фанеры
  • Фанера один слой 20мм не шлифованная
Монтаж сетки против грызунов
  • Сетка оцинкованная ячейка 6х6мм
  • Пресс-шайба 2,5х25мм
Монтаж черновой обрешетки под лагами (шаг 350 мм в просвете)
  • Доска сухая строганная 20х90х6000мм ТУ
  • Саморезы желтые с крупной резьбой
Монтаж доп.обрешетки для дополнительного утепления 50мм (шаг 300 мм в просвете)
  • Доска сухая строганная 45х45х6000мм ТУ
  • Саморезы желтые с крупной резьбой
Утепление полов в 5 слоев (250мм) с гидроизоляцией и пароизоляцией (с проклейкой стыков)
  • Пароизоляция Ютафол H110 Стандарт
  • Ветрозащитная паропроницаемая мембрана Изоспан
  • Односторонняя соединительная лента ДЕЛЬТА
  • Скобы для степлера
  • Плитный базальтовый утеплитель Технониколь Техноакустик
Монтаж антискрипной ленты под обрешетку
  • Лента уплотнительная Knauf Дихтунгсбанд
Монтаж обрешетки над лагами с шагом 300 мм в просвете
  • Доска сухая строганная 20х90х6000мм ТУ
  • Саморезы черные с крупной резьбой
Монтаж антискрипной ленты под фанеру
  • Лента уплотнительная Knauf Дихтунгсбанд
Монтаж фанеры
  • Фанера 25мм два слоя по 12,5мм 1525х1525мм
Полусухая стяжка материал
  • Раствор стяжки 7 см
  • Эктсрудированный пенополистирол Пенолекс 50мм
  • Сетка арматурная кладочная
  • Выравнивающая подсыпка под утеплитель
  • Вибродемферная лента
Полусухая стяжка работы
  • Подсыпка под утеплитель
  • Укладка утеплителя
  • Проклейка демферной ленты
  • Укладка арматурной сетки
  • Заливка полусухой стяжки
Доставка
Контроль инженером технического надзора
Сухая стяжка материал
  • Раствор стяжки Кнауф
  • Эктсрудированный пенополистирол Пенолекс 50мм
  • Сетка арматурная кладочная
  • Выравнивающая подсыпка под утеплитель
  • Вибродемферная лента
Сухая стяжка работы
  • Подсыпка под утеплитель
  • Укладка утеплителя
  • Проклейка демферной ленты
  • Укладка арматурной сетки
  • Заливка сухой стяжки
Доставка
Контроль инженером технического надзора
0 руб.
Черновые полы второго этажа
Монтаж черновой обрешетки под лагами (шаг 250 мм в просвете)
  • Доска сухая строганная
  • Саморезы желтые с крупной резьбой
Утепление полов в 3 слоя (150мм) с гидроизоляцией и пароизоляцией (с проклейкой стыков)
  • Пароизоляция Ютафол H110 Стандарт
  • Ветрозащитная паропроницаемая мембрана Изоспан
  • Односторонняя соединительная лента
  • Скобы для степплера
  • Плитный базальтовый утеплитель Технониколь Техноакустик 50х600х1200мм
Монтаж обрешетки над лагами с шагом 200 мм в просвете
  • Доска сухая строганная
  • Саморезы черные с крупной резьбой
Монтаж фанеры
  • Фанера один слой 18мм не шлифованная
Монтаж черновой обрешетки под лагами (шаг 250 мм в просвете)
  • Доска сухая строганная 20х90х6000мм ТУ
  • Саморезы желтые с крупной резьбой
Утепление полов в 4 слоя (200мм) с гидроизоляцией и пароизоляцией (с проклейкой стыков)
  • Пароизоляция Ютафол H110 Стандарт
  • Ветрозащитная паропроницаемая мембрана Изоспан
  • Односторонняя соединительная лента ДЕЛЬТА
  • Скобы для степлера
  • Плитный базальтовый утеплитель Технониколь Техноакустик
Монтаж антискрипной ленты под обрешетку
  • Лента уплотнительная Knauf Дихтунгсбанд
Монтаж обрешетки над лагами с шагом 200 мм в просвете
  • Доска сухая строганная 25х90х6000мм ТУ
  • Саморезы черные с крупной резьбой
Монтаж антискрипной ленты под фанеру
  • Лента уплотнительная Knauf Дихтунгсбанд
Монтаж фанеры
  • Фанера 22мм 1525х1525мм
0 руб.
Чистовые полы первого этажа
Монтаж ламината с подложкой
  • Ламинат 8мм 33 класс
  • Герметик полиуретановый
  • Подложка-гармошка XPS
Монтаж пластиковых плинтусов
  • Плинтус пластиковый
  • Гвозди финишные
Монтаж половой шпунтованной доски со скрытым креплением в паз / шип
  • Шпунтованная доска Сосна Класс АВ 140х36мм
  • Плинтус деревянный хвоя Экстра 10х55
  • Подложка гидро-теплоизоляционная 3мм
  • Саморезы желтые скрытые
Монтаж деревянных плинтусов
  • Плинтус деревянный сосна
  • Гвозди финишные
Шлифовка доски пола в 1 проход
  • Шлиф ленты по дереву
  • Платформа для шлифмашинки
Промежуточная шлифовка пола
  • Лента для промежуточной шлифовки
  • Губки для промежуточной шлифовки
Грунтовка и покраска доски пола в 2 слоя маслом + обезжиривание
  • Макловица
  • Растворитель
  • Универсальная твердая грунтовка
  • Масло цветное для интерьера
  • Колеровка
  • Уайтспирит
Покраска плинтусов пола в 2 слоя маслом
  • Кисти для масла
  • Универсальное твердое масло для внутренних работ
  • Колеровка
  • Уайтспирит
Монтаж половой шпунтованной доски со скрытым креплением в паз / шип
  • Шпунтованная доска Лиственница Класс АВ 90-140х35мм
  • Саморезы черные с крупной резьбой 3,5х76мм
Монтаж деревянных плинтусов
  • Плинтус деревянный сосна
  • Гвозди финишные
Шлифовка доски пола в 1 проход
  • Шлиф ленты по дереву
  • Платформа для шлифмашинки
Промежуточная шлифовка пола
  • Лента для промежуточной шлифовки
  • Губки для промежуточной шлифовки
Грунтовка и покраска доски пола в 2 слоя маслом + обезжиривание
  • Макловица
  • Растворитель
  • Универсальная твердая грунтовка
  • Масло цветное для интерьера
  • Колеровка
  • Уайтспирит
Покраска плинтусов пола в 2 слоя маслом
  • Кисти для масла
  • Универсальное твердое масло для внутренних работ
  • Колеровка
  • Уайтспирит
Монтаж половой шпунтованной доски со скрытым креплением в паз / шип
  • Шпунтованная доска Лиственница Класс Прима-Экстра 90-140х35мм
  • Саморезы черные с крупной резьбой 3,5х76мм
Монтаж деревянных плинтусов
  • Плинтус деревянный сосна
  • Гвозди финишные
Шлифовка доски пола в 1 проход
  • Шлиф ленты по дереву
  • Платформа для шлифмашинки
Промежуточная шлифовка пола
  • Лента для промежуточной шлифовки
  • Губки для промежуточной шлифовки
Грунтовка и покраска доски пола в 2 слоя маслом + обезжиривание
  • Макловица
  • Растворитель
  • Универсальная твердая грунтовка
  • Масло цветное для интерьера
  • Колеровка
  • Уайтспирит
Покраска плинтусов пола в 2 слоя маслом
  • Кисти для масла
  • Универсальное твердое масло для внутренних работ
  • Колеровка
  • Уайтспирит
0 руб.
Чистовые полы второго этажа
Монтаж ламината с подложкой
  • Ламинат 6мм 31 класс
  • Герметик полиуретановый
  • Подложка-гармошка XPS
Монтаж пластиковых плинтусов
  • Плинтус деревянный сосна
  • Гвозди финишные
Монтаж половой шпунтованной доски со скрытым креплением в паз / шип
  • Европол доска Хвоя Класс АВ 140х36мм
  • Плинтус деревянный хвоя Экстра 10х55
  • Подложка гидро-теплоизоляционная 3мм
  • Саморезы желтые скрытые
Монтаж деревянных плинтусов
  • Плинтус деревянный сосна
  • Гвозди финишные
Шлифовка доски пола в 1 проход
  • Шлиф ленты по дереву
  • Платформа для шлифмашинки
Промежуточная шлифовка пола
  • Лента для промежуточной шлифовки
  • Губки для промежуточной шлифовки
Грунтовка и покраска доски пола в 2 слоя маслом + обезжиривание
  • Макловица
  • Растворитель
  • Универсальная твердая грунтовка
  • Масло цветное для интерьера
  • Колеровка
  • Уайтспирит
Покраска плинтусов пола в 2 слоя маслом
  • Кисти для масла
  • Универсальное твердое масло для внутренних работ
  • Колеровка
  • Уайтспирит
Монтаж половой шпунтованной доски со скрытым креплением в паз / шип
  • Шпунтованная доска Лиственница Класс АВ 90-140х35мм
  • Саморезы черные с крупной резьбой 3,5х76мм
Монтаж деревянных плинтусов
  • Плинтус деревянный сосна
  • Гвозди финишные
Шлифовка доски пола в 1 проход
  • Шлиф ленты по дереву
  • Платформа для шлифмашинки
Промежуточная шлифовка пола
  • Лента для промежуточной шлифовки
  • Губки для промежуточной шлифовки
Грунтовка и покраска доски пола в 2 слоя маслом + обезжиривание
  • Макловица
  • Растворитель
  • Универсальная твердая грунтовка
  • Масло цветное для интерьера
  • Колеровка
  • Уайтспирит
Покраска плинтусов пола в 2 слоя маслом
  • Кисти для масла
  • Универсальное твердое масло для внутренних работ
  • Колеровка
  • Уайтспирит
Монтаж половой шпунтованной доски со скрытым креплением в паз / шип
  • Шпунтованная доска Лиственница Класс Прима-Экстра 90-140х35мм
  • Саморезы черные с крупной резьбой 3,5х76мм
Монтаж деревянных плинтусов
  • Плинтус деревянный сосна
  • Гвозди финишные
Шлифовка доски пола в 1 проход
  • Шлиф ленты по дереву
  • Платформа для шлифмашинки
Промежуточная шлифовка пола
  • Лента для промежуточной шлифовки
  • Губки для промежуточной шлифовки
Грунтовка и покраска доски пола в 2 слоя маслом + обезжиривание
  • Макловица
  • Растворитель
  • Универсальная твердая грунтовка
  • Масло цветное для интерьера
  • Колеровка
  • Уайтспирит
Покраска плинтусов пола в 2 слоя маслом
  • Кисти для масла
  • Универсальное твердое масло для внутренних работ
  • Колеровка
  • Уайтспирит
0 руб.
Терраса и крыльцо
Монтаж ДПК террасной доски на кляймеры
  • Террасная доска ДПК цвет на выбор 140х24 мм
Монтаж ДПК уголков
  • Доборные элеметы и крепеж
Монтаж обрешетки
  • Доска сухая 25х100

Монтаж половой шпунтованной доски со скрытым креплением в паз / шип
  • Шпунтованная доска Лиственница Класс АВ 90-140х35мм
  • Саморезы черные с крупной резьбой 3,5х76мм
Монтаж деревянных плинтусов
  • Плинтус деревянный сосна
  • Гвозди финишные
Шлифовка доски пола в 1 проход
  • Шлиф ленты по дереву
  • Платформа для шлифмашинки
Промежуточная шлифовка пола
  • Лента для промежуточной шлифовки
  • Губки для промежуточной шлифовки
Грунтовка и покраска доски пола в 2 слоя маслом + обезжиривание
  • Макловица
  • Растворитель
  • Универсальная твердая грунтовка
  • Масло цветное для интерьера
  • Колеровка
  • Уайтспирит
Покраска плинтусов пола в 2 слоя маслом
  • Кисти для масла
  • Универсальное твердое масло для внутренних работ
  • Колеровка
  • Уайтспирит
Монтаж половой шпунтованной доски со скрытым креплением в паз / шип
  • Шпунтованная доска Лиственница Класс АВ Вельвет 90-140х35мм
  • Саморезы черные с крупной резьбой 3,5х76мм
Монтаж деревянных плинтусов
  • Плинтус деревянный сосна
  • Гвозди финишные
Шлифовка доски пола в 1 проход
  • Шлиф ленты по дереву
  • Платформа для шлифмашинки
Промежуточная шлифовка пола
  • Лента для промежуточной шлифовки
  • Губки для промежуточной шлифовки
Грунтовка и покраска доски пола в 2 слоя маслом + обезжиривание
  • Макловица
  • Растворитель
  • Универсальная твердая грунтовка
  • Масло цветное для интерьера
  • Колеровка
  • Уайтспирит
Покраска плинтусов пола в 2 слоя маслом
  • Кисти для масла
  • Универсальное твердое масло для внутренних работ
  • Колеровка
  • Уайтспирит
Монтаж половой шпунтованной доски со скрытым креплением в паз / шип
  • Шпунтованная доска Лиственница Класс Прима-Экстра 90-140х35мм
  • Саморезы черные с крупной резьбой 3,5х76мм
Монтаж деревянных плинтусов
  • Плинтус деревянный сосна
  • Гвозди финишные
Шлифовка доски пола в 1 проход
  • Шлиф ленты по дереву
  • Платформа для шлифмашинки
Промежуточная шлифовка пола
  • Лента для промежуточной шлифовки
  • Губки для промежуточной шлифовки
Грунтовка и покраска доски пола в 2 слоя маслом + обезжиривание
  • Макловица
  • Растворитель
  • Универсальная твердая грунтовка
  • Масло цветное для интерьера
  • Колеровка
  • Уайтспирит
Покраска плинтусов пола в 2 слоя маслом
  • Кисти для масла
  • Универсальное твердое масло для внутренних работ
  • Колеровка
  • Уайтспирит
0 руб.
Потолки
Монтаж обрешетки на потолке с шагом 300мм в просвете
  • Доска сухая строганная 20х90
  • Саморезы черные с крупной резьбой
Монтаж вагонки на потолок (скрытое крепление "в паз")
  • Вагонка штиль Хвоя сорт АВ
  • Гвозди финишные
Монтаж раскладки деревянной
  • Раскладка деревянная Экстра
  • Гвозди финишные
Монтаж обрешетки на потолке с шагом 300мм в просвете
  • Доска сухая строганная
  • Саморезы черные с крупной резьбой
Монтаж вагонки на потолок (скрытое крепление "в паз")
  • Вагонка штиль Лиственница сорт АВ
  • Гвозди финишные
Монтаж раскладки деревянной
  • Раскладка деревянная сосна
  • Гвозди финишные
Монтаж обрешетки на потолке с шагом 300мм в просвете
  • Доска сухая строганная
  • Саморезы черные с крупной резьбой
Монтаж вагонки на потолок (скрытое крепление "в паз")
  • Вагонка штиль Лиственница сорт Прима
  • Гвозди финишные
Монтаж раскладки деревянной
  • Раскладка деревянная сосна
  • Гвозди финишные
Монтаж обрешетки на потолке с шагом 300мм в просвете
  • Доска сухая строганная
  • Саморезы черные с крупной резьбой
Монтаж вагонки на потолок (скрытое крепление "в паз")
  • Вагонка штиль Лиственница сорт Экстра (без сучков)
  • Гвозди финишные
Монтаж раскладки деревянной
  • Раскладка деревянная сосна
  • Гвозди финишные
0 руб.
Свесы и карнизы
Монтаж свесов и карнизов
  • Планкен прямой сорт АВ 20х145
  • Гвозди финишные
Монтаж свесов и карнизов
  • Планкен прямой сорт АВ 20х145
  • Гвозди финишные
Шлифовка доски в 1 проход
  • Шлиф ленты по дереву
  • Платформа для шлифмашинки
Промежуточная шлифовка
  • Лента для промежуточной шлифовки
  • Губки для промежуточной шлифовки
Грунтовка в 1 слой
  • Кисти для масла
  • Специальный грунт-антисептик
  • Уайтспирит
Покраска в 2 слоя маслом
  • Кисти для масла
  • Масло защитное для наружных работ с антисептиком
  • Колеровка
  • Уайтспирит
Монтаж свесов и карнизов
  • Планкен Лиственница сорт АВ прямой 20х90-140
  • Гвозди финишные
Шлифовка доски в 1 проход
  • Шлиф ленты по дереву
  • Платформа для шлифмашинки
Промежуточная шлифовка
  • Лента для промежуточной шлифовки
  • Губки для промежуточной шлифовки
Грунтовка в 1 слой
  • Кисти для масла
  • BIOFA Специальный грунт-антисептик
  • Уайтспирит
Покраска в 2 слоя маслом
  • Кисти для масла
  • BIOFA Масло защитное для наружных работ с антисептиком
  • Колеровка
  • Уайтспирит
Монтаж свесов и карнизов
  • Планкен Лиственница сорт ЭКСТРА прямой 20х145
  • Гвозди финишные
Шлифовка доски в 1 проход
  • Шлиф ленты по дереву
  • Платформа для шлифмашинки
Промежуточная шлифовка
  • Лента для промежуточной шлифовки
  • Губки для промежуточной шлифовки
Грунтовка в 1 слой
  • Кисти для масла
  • BIOFA Специальный грунт-антисептик
  • Уайтспирит
Покраска в 2 слоя маслом
  • Кисти для масла
  • BIOFA Масло защитное для наружных работ с антисептиком
  • Колеровка
  • Уайтспирит
0 руб.
Торцевые и лобовые доски

Монтаж лесенкой торцевых и лобовых досок

  • Доска сухая строганная 20х145 сорт АВ
  • Брусок сухой строганный 20х40 сорт АВ
  • Гвозди финишные

Монтаж лесенкой торцевых и лобовых досок

  • Доска сухая строганная 20х145 сорт АВ
  • Брусок сухой строганный 20х40 сорт АВ
  • Гвозди финишные
Шлифовка доски в 1 проход
  • Шлиф ленты по дереву
  • Платформа для шлифмашинки
Промежуточная шлифовка
  • Лента для промежуточной шлифовки
  • Губки для промежуточной шлифовки
Грунтовка в 1 слой
  • Кисти для масла
  • Специальный грунт-антисептик
  • Уайтспирит
Покраска в 2 слоя маслом
  • Кисти для масла
  • Масло защитное для наружных работ с антисептиком
  • Колеровка
  • Уайтспирит
0 руб.
Стены внутри
Шлифовка стен в 1 проход
  • Шлиф ленты по дереву
  • Платформа для шлифмашинки
  • Респиратор
Шлифовка стен угловая
  • Шлиф круги по дереву
  • Платформа для шлифмашинки
  • Респиратор
Шлифовка торцов
  • Круги шлифовальные фиброволокно р60
  • Платформа для шлифмашинки
  • Шлиф круги по дереву
  • Респиратор
Обеспылевание поверхности после шлифовки

Грунтовка стен в 1 слой
  • Кисти для масла
  • BIOFA Специальный грунт-антисептик
Покраска стен в 2 слоя маслом
  • Кисти для масла
  • BIOFA Универсальное твердое масло для внутренних работ
  • Колеровка
  • Уайтспирит
Покраска торцов в 2 слоя маслом
  • Кисти для масла
  • Teknol JRM Защита для торцов
  • Универсальное твердое масло для внутренних работ
  • Колеровка
  • Уайтспирит
Шлифовка стен в 2 прохода
  • Шлиф ленты по дереву р60
  • Шлиф ленты по дереву р80
  • Шлиф ленты по дереву р120
  • Платформа для шлифмашинки
  • Респиратор
Шлифовка стен угловая
  • Шлиф круги по дереву р80
  • Шлиф круги по дереву р120
  • Платформа для шлифмашинки
  • Респиратор
Шлифовка торцов
  • Круги шлифовальные фиброволокно р60
  • Платформа для шлифмашинки
  • Шлиф круги по дереву р120
  • Респиратор
Обеспылевание поверхности после шлифовки

Грунтовка стен в 1 слой
  • Кисти для масла
  • BIOFA Специальный грунт-антисептик
Промежуточная шлифовка стен
  • Лента для промежуточной шлифовки
  • Губки для промежуточной шлифовки
Покраска стен в 2 слоя маслом
  • Кисти для масла 100мм
  • BIOFA Универсальное твердое масло для внутренних работ
  • Колеровка
  • Уайтспирит
Покраска торцов в 2 слоя маслом
  • Кисти для масла
  • Teknol JRM Защита для торцов
  • BIOFA Универсальное твердое масло для внутренних работ
  • Колеровка
  • Уайтспирит
0 руб.
Стены снаружи
Шлифовка стен в 1 проход
  • Шлиф ленты по дереву
  • Платформа для шлифмашинки
  • Респиратор
Шлифовка стен угловая
  • Шлиф круги по дереву
  • Платформа для шлифмашинки
  • Респиратор
Шлифовка торцов
  • Круги шлифовальные фиброволокно р60
  • Платформа для шлифмашинки
  • Шлиф круги по дереву
  • Респиратор
Обеспылевание поверхности после шлифовки Грунтовка стен в 1 слой
  • Кисти для масла
  • BIOFA Специальный грунт-антисептик
Покраска стен в 2 слоя маслом
  • Кисти для масла
  • BIOFA Универсальное твердое масло для внутренних работ
  • Колеровка
  • Уайтспирит
Покраска торцов в 2 слоя маслом
  • Кисти для масла
  • Teknol JRM Защита для торцов
  • BIOFA Универсальное твердое масло для внутренних работ
  • Колеровка
  • Уайтспирит
Шлифовка стен в 2 прохода
  • Шлиф ленты по дереву р60
  • Шлиф ленты по дереву р80
  • Шлиф ленты по дереву р120
  • Платформа для шлифмашинки
  • Респиратор
Шлифовка стен угловая
  • Шлиф круги по дереву р80
  • Шлиф круги по дереву р120
  • Платформа для шлифмашинки
  • Респиратор
Шлифовка торцов
  • Круги шлифовальные фиброволокно р60
  • Платформа для шлифмашинки
  • Шлиф круги по дереву р120
  • Респиратор
Обеспылевание поверхности после шлифовки

Грунтовка стен в 1 слой
  • Кисти для масла
  • BIOFA Специальный грунт-антисептик
Промежуточная шлифовка стен
  • Лента для промежуточной шлифовки
  • Губки для промежуточной шлифовки
Покраска стен в 2 слоя маслом
  • Кисти для масла 100мм
  • BIOFA Универсальное твердое масло для внутренних работ
  • Колеровка
  • Уайтспирит
Покраска торцов в 2 слоя маслом
  • Кисти для масла
  • Teknol JRM Защита для торцов
  • BIOFA Универсальное твердое масло для внутренних работ
  • Колеровка
  • Уайтспирит
0 руб.
Каркасные перегородки

Монтаж каркасных перегородок
Стойка каркаса 45х95х6000
Утеплитель Rockwool Лайт Баттс Скандик
Пароизоляционная пленка и скобы

Монтаж имитации бруса
Имитация бруса 24х190
Саморезы желтые

Монтаж каркасных перегородок
Стойка каркаса 45х140х6000
Утеплитель Rockwool Лайт Баттс Скандик
Пароизоляционная пленка и скобы

Монтаж имитации бруса
Имитация бруса 30х190
Саморезы желтые

0 руб.
Двери входные
Двери входные железные ДС 9 "Ультратихая" с Зеркалом
0 руб.
Двери межкомнатные
0 руб.
Разводка ОВ и ВК
Монтаж системы отопления (материал расчитывается после проекта)
  • Монтаж и гидравлическая обвязка газового настенного одноконтурного котла до 35 кВт или электрического до 60 кВт
  • Монтаж радиаторов "под ключ" - подводка трубопроводов от стояка (коллектора), гидравлическая обвязка, установка терморегулятора.
  • Монтаж термостатического регулятора на отопительный прибор
  • Монтаж трубопроводов (металлопласт, сшитый полиэтилен) Ø16-20 мм
  • Монтаж труб системы отопления. Пайка труб
  • Монтаж бытового циркуляционного насоса отопления / гидравлическая обвязка полимерными трубами
  • Монтаж и обвязка узла, включающего гидравлический разделитель и распределительный коллектор в котельной
  • Монтаж сервопривода трехходового крана
  • Монтаж водяного теплого пола на матах
  • Монтаж коллекторного/сантехнического шкафа
  • Монтаж блока автоматического регулирования
  • Заправка системы теплоносителем подготовленная вода или "антифриз"
  • Прокачка системы водяного теплого пола до 4-х контуров
  • Опрессовка (гидравлические испытания) системы отопления, с составлением акта ввода в эксплуатацию

Монтаж системы водоснабжения (материал расчитывается после проекта)
  • Монтаж и подключение точки водоснабжения, вывод под прибор, ХВС или ГВС, (установка водорозетки)
  • Монтаж трубопроводов (металлопласт, сшитый полиэтилен) Ø16-20 мм
  • Монтаж гребенки/коллектора водоснабжения до 5 вых
  • Монтаж, обвязка и установка колодезного насоса, труба ПНД Ø 32
  • Монтаж насосной станции в помещении дома
  • Монтаж расширительного бака (гидроаккумулятора) до 30 л.
  • Монтаж зимнего слива в колодце (ручной или электропривод)
  • Монтаж шарового крана, вентиля, обратного клапана
  • Установка импульсного счетчика воды ХВС, ГВС
  • Установка водонагревателя проточного типа
  • Обвязка и установка водонагревателя накопительного типа 80-100 л., с установкой системы развоздушивания и слива
  • Установка ванны
  • Монтаж смесителя на ванну, в душевую кабину
  • Установка сифона ванны
  • Установка душевой кабины
  • Монтаж душевой стойки с подключением
  • Установка раковины
  • Монтаж смесителя на раковину
  • Установка сифона (раковина)
  • Установка и подключение напольного унитаза
  • Установка арматуры сливного бачка унитаза
  • Установка биде, писсуара премиум
  • Подключение стиральной машины
  • Подключение посудомоечной машины
  • Монтаж полотенцесушителя
  • Установка запорно-регулирующей арматуры на водорозетку (монтаж углового крана, уголка, пр. фитингов)
Монтаж системы канализации (материал расчитывается после проекта)
  • Монтаж труб внутренней канализации Ø50
  • Монтаж горизонтальных/вертикальных лежаков/стояков канализации Ø110
  • Монтаж труб напорной канализации Ø 40-50
  • Монтаж обратного клапана канализации
  • Монтаж канализационной насосной установки
  • Монтаж дренажного насоса
  • Монтаж фановой трубы
  • Прокладка дренажной или канализационной трубы
Монтаж дымоходов
  • Монтаж трубы отвода отходящих газов
  • Монтаж коаксиального дымохода
  • Монтаж утепленного дымохода модульной конструкции наружной прокладки
Монтаж системы отопления (материал расчитывается после проекта)
  • Монтаж и гидравлическая обвязка газового настенного одноконтурного или двухконтурного котла, электрического
  • Монтаж нестандартных котлов: чугунные приборы нестандартных размеров, дизайнерские радиаторы (включая установку запорного и регулирующего вентиля, подключение к трубопроводам отопления)
  • Монтаж комнатного терморегулятора для водяного теплого пола, с датчиком "в пол", включая подключение
  • Монтаж трубопроводов (металлопласт, сшитый полиэтилен, полипропилен)
  • Монтаж труб системы отопления. Пайка труб
  • Монтаж бытового циркуляционного насоса отопления / гидравлическая обвязка полимерными трубами
  • Монтаж и гидравлическая обвязка бойлера косвенного нагрева до 200 л, (включает дублирующую систему безопасности, расширительный бак, воздухоотводчики, датчик регулировки температуры, обвязку выхода рециркуляции и систему полноценного и безопастного слива емкости)
  • Монтаж и обвязка узла, включающего гидравлический разделитель и распределительный коллектор в котельной
  • Монтаж сервопривода трехходового крана
  • Монтаж теплого пола на теплопроводных пластинах
  • Монтаж коллекторного/сантехнического шкафа
  • Монтаж блока автоматического регулирования
  • Монтаж сервопривода на распределительный коллектор для зонального регулирования температуры
  • Заправка системы теплоносителем подготовленная вода или "антифриз"
  • Прокачка системы водяного теплого пола до 4-х контуров
  • Опрессовка (гидравлические испытания) системы отопления, с составлением акта ввода в эксплуатацию
Монтаж системы водоснабжения (материал расчитывается после проекта)
  • Монтаж и подключение точки водоснабжения, вывод под прибор, ХВС или ГВС, (установка водорозетки)
  • Монтаж трубопроводов (металлопласт, сшитый полиэтилен, полипропилен)
  • Монтаж гребенки/коллектора водоснабжения
  • Монтаж, обвязка и установка колодезного насоса, труба ПНД Ø 32
  • Монтаж насосной станции в помещении дома
  • Монтаж и обвязка расширительного бака (гидроаккумулятора) от 30 л., вкл. слив, развоздушку и узел управления насоса
  • Монтаж зимнего слива в колодце (ручной или электропривод)
  • Монтаж шарового крана, вентиля, обратного клапана
  • Монтаж трубной теплоизоляции Ø16-32 мм
  • Установка импульсного счетчика воды ХВС, ГВС
  • Установка системы магистральных фильтров и тонкой очистки
  • Устройство слива системы воды на зимний период (ручной или электро клапан), в антивандальном исполнении
  • Установка водонагревателя проточного типа
  • Обвязка и установка водонагревателя накопительного типа 80-100 л., с установкой системы развоздушивания и слива
  • Установка ванны
  • Установка ванны с гидромассажем
  • Монтаж смесителя на ванну, в душевую кабину
  • Установка сифона ванны
  • Установка душевой кабины
  • Монтаж душевой стойки с подключением
  • Установка гигиенического душа
  • Установка раковины
  • Сборка и установка раковины с тумбой
  • Монтаж смесителя на раковину
  • Установка сифона (раковина)
  • Установка и подключение напольного унитаза
  • Установка и подключение подвесного унитаза
  • Монтаж аксессуаров в ванной комнате
  • Установка арматуры сливного бачка унитаза
  • Установка биде, писсуара
  • Подключение стиральной машины
  • Подключение посудомоечной машины
  • Монтаж полотенцесушителя
  • Монтаж душевых перегородок, ограждений (стекло)
  • Монтаж инсталляции под подвесной унитаз, биде
  • Установка запорно-регулирующей арматуры на водорозетку (монтаж углового крана, уголка, пр. фитингов)
Монтаж системы канализации (материал расчитывается после проекта)
  • Монтаж труб внутренней канализации Ø100
  • Монтаж горизонтальных/вертикальных лежаков/стояков канализации Ø110
  • Монтаж труб напорной канализации Ø 110
  • Монтаж труб канализации на шпильках или лотках, в стесненных условиях Ø50-110 (например цокольный этаж)
  • Монтаж обратного клапана канализации
  • Монтаж канализационной насосной установки
  • Монтаж КНС (15 м3/час), вкл. пуско-наладочные работы
  • Установка портативного жироуловителя премиум
  • Монтаж дренажного насоса
  • Установка септика с подключением к системе
  • Монтаж фановой трубы
  • Прокладка дренажной или канализационной трубы
Монтаж дымоходов
  • Монтаж трубы отвода отходящих газов
  • Монтаж коаксиального дымохода
  • Монтаж утепленного дымохода модульной конструкции наружной прокладки
0 руб.
Разводка электрики

Разводка электрики до 1 точки на 4 кв.м. помещения

Материалы отдельно рассчитываются или предоставляются заказчиком.

Разводка электрики до 1 точки на 2 кв.м. помещения

Материалы отдельно рассчитываются или предоставляются заказчиком.

0 руб.
Итоговая стоимость: руб.
Заказать

Этапы строительства дома

Строительство дома разделяется на несколько этапов. Базовое строительство описано в каждом блоке.
Фундамент
Фундамент ленточный 600х300 с буронабивными сваями 1,8 м, d25 Геодезические работы: разбивка осей, нивелировка, вынос осей внатуру Копка траншей вручную Монтаж арматурного каркаса: арматура А3 Ф12 "рифлен"; Ф6 "катанка", провол вязал. Монтаж опалубки:доска обрезная сорт АВ, комплект крепежа. Бурение свай Заливка бетоном фундамента: бетон М300 Б22,5; виброусадка Закладные под инженерные коммуникации Аренда Бетононасоса.
Стеновой комплект
Клееный брус 190hх202 Оптима (Нарезка чаш, сверловка отверстий под шпильки и скрытой электропроводки, пазы под обсадную коробку, упаковка в пленку) Балки и стойки Лаги пола доска сухая 50х200 Гидроизоляция, утеплитель в чаши Политерм, межвенцовый Стизол, пружинный узел Сила, материал укрывной, расходный материал (гвозди, саморезы, пена, скобы, крепление) и т.п. Леса Доставка
Кровля
Кровельное покрытие GL Металлочерепица Classic Satin-0,5 Комплект материалов по утеплению кровли 200мм Extra Комплектующие кровельного покрытия для черепицы Обрешетка, контрообрешетка: доска обрезная 25*100мм, брусок обрезной 45*45мм Стропила, лобовая доска, 47х197 сухая строганная Комплект крепежа: крепеж скольз.основа, шпилька, гайка, шайба, уголки, гвозди, саморезы
Установка окон
Установка обсадной коробки и пластиковых окон с одной ламинацией: Разметка проема Установка обсадной коробки (сухая доска 45х195, брусок 50х50, утеплитель) Установка оконной рамы Навешивание створок Монтаж наличников
Отделка
Отделочные работы: черновые полы, чистовые полы, отделка потолков, каркасные стены, свесы и карнизы, навесы и крыльцо, покраска стен внутри и снаружи, электроразводка, водоснабжение, отопление, водоотведение.
Технадзор и принятие дома
Технадзор на всем этапе строительства. Проверка на качество, комплектность материалов и принятие дома по акту

Отзывы о проекте

Сделали все так как надо было


Восемь месяцев назад мы с мужем решили построить дачный дом, для этого мы обратились в компанию ДСК Норд
Не пожалели! Очень довольны результатом, строители достаточно качественно выполнили свою работу, все было сделано в указанные в договоре сроки. Так же проектировщик сделала дом идентично нашему предпочтению, именно о таком домике мы мечтали(чудесный воздух и крепкий сон в нашем доме)! Мало того, что дом построен из практичного клеёного бруса, мы выбрали шириной говорят это наиболее подходящий размер для нашего региона, но еще он очень красиво выглядит! Дом отлично держит тепло. За это время с брусом ни чего не произошло, может это конечно ещё рано совсем, недавно покрасили немецкими красками очень симпатично получилось. Особенностью нашего дома является его стопроцентная натуральность, в доме всегда приятный воздух, мы сделали очень достойный выбор. Работники знают своё дело и делают его на все 100! Сейчас уже все работы полностью закончены. Конечно за это время мы уже сами стали «строителями»)). Дом имеет законченный вид, делимся фотками. Можем подкинуть пару советов о которых мы и не знаю до начала стройки. Пишите в личку.

Подробнее на Отзовик:
https://otzovik.com/review_9038999.html

Вероника
Коттедж из клееного бруса отзыв


Вот это я называю дом из клееного бруса под ключ. Дороговато конечно, зато, заказал и не о чем не думаешь, и над душой не стоишь. Спасибо кстати, что посоветовали брать клееный брус большего сечения. Теперь не надо заморачиваться по поводу утепления.

Алексей
Дом из клееного бруса отзыв


Заказал дом из клееного бруса зимой 2019 года, на всё про всё от заключения договора до кровли ушло 3 месяца, фундамент был готов до этого. К покраске весной готова))

Виталий

Получить консультацию