





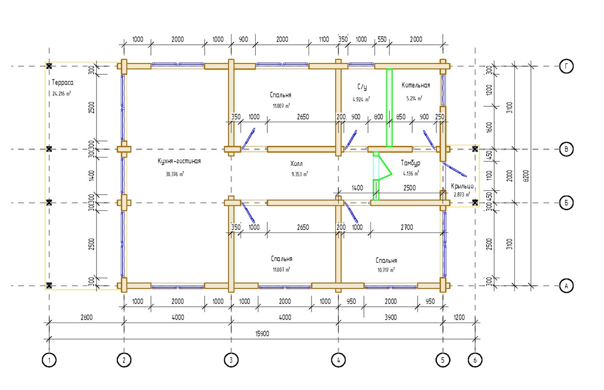
Расстановка свай согласно плана фундамента (бесплатно)
Геодезические работы
Доставка свай рассчитывается отдельно
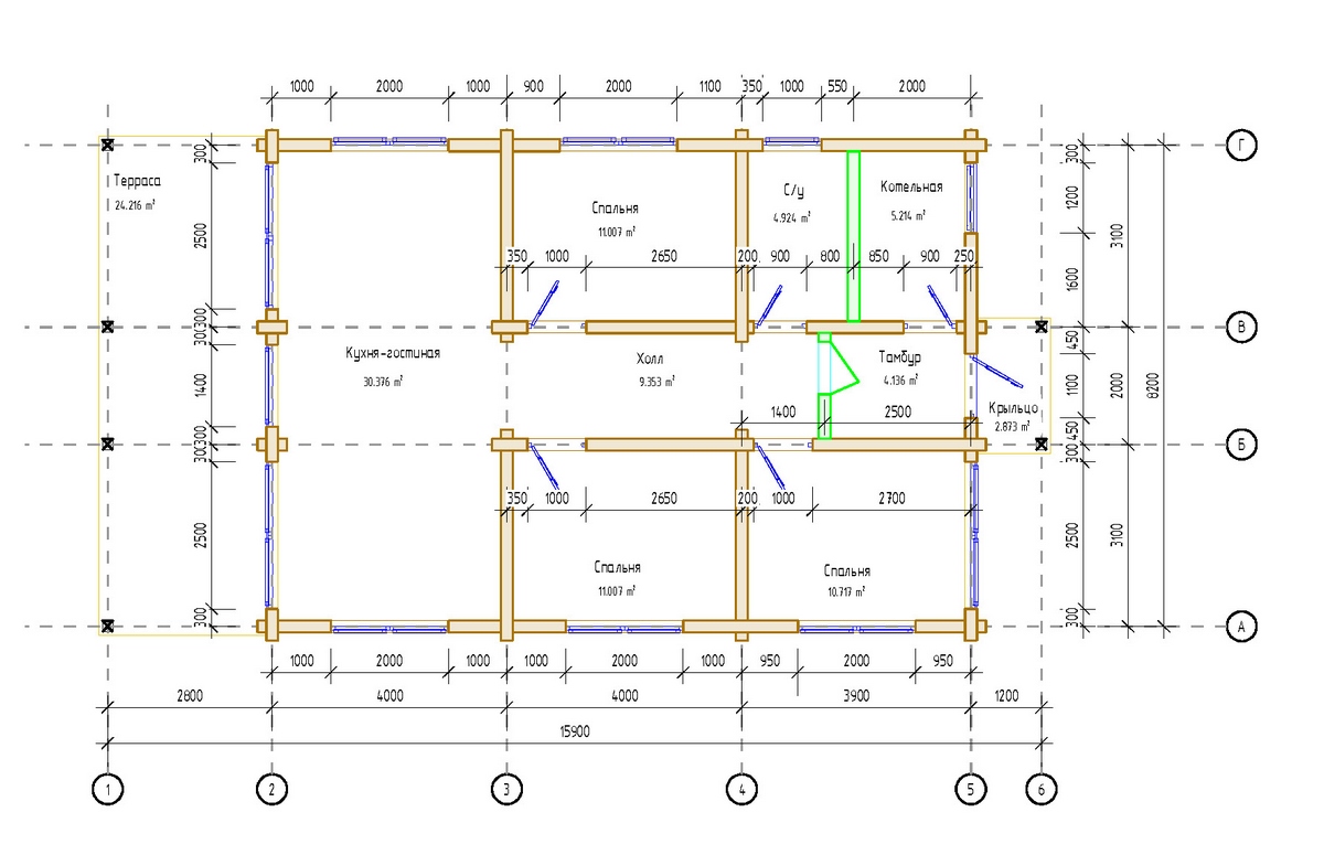
Расстановка свай согласно плана фундамента (бесплатно)
Геодезические работы
Доставка свай рассчитывается отдельно
Доставка
Контроль инженером технического надзора
Доставка
Контроль инженером технического надзора
Доставка
Контроль инженером технического надзора
Доставка
Контроль инженером технического надзора
Монтаж лесенкой торцевых и лобовых досок
Монтаж лесенкой торцевых и лобовых досок
Монтаж каркасных перегородок
Стойка каркаса 45х95х6000
Утеплитель Rockwool Лайт Баттс Скандик
Пароизоляционная пленка и скобы
Монтаж имитации бруса
Имитация бруса 24х190
Саморезы желтые
Монтаж каркасных перегородок
Стойка каркаса 45х140х6000
Утеплитель Rockwool Лайт Баттс Скандик
Пароизоляционная пленка и скобы
Монтаж имитации бруса
Имитация бруса 30х190
Саморезы желтые
Разводка электрики до 1 точки на 4 кв.м. помещения
Материалы отдельно рассчитываются или предоставляются заказчиком.
Разводка электрики до 1 точки на 2 кв.м. помещения
Материалы отдельно рассчитываются или предоставляются заказчиком.
Восемь месяцев назад мы с мужем решили построить дачный дом, для этого мы обратились в компанию ДСК Норд
Не пожалели! Очень довольны результатом, строители достаточно качественно выполнили свою работу, все было сделано в указанные в договоре сроки. Так же проектировщик сделала дом идентично нашему предпочтению, именно о таком домике мы мечтали(чудесный воздух и крепкий сон в нашем доме)! Мало того, что дом построен из практичного клеёного бруса, мы выбрали шириной говорят это наиболее подходящий размер для нашего региона, но еще он очень красиво выглядит! Дом отлично держит тепло. За это время с брусом ни чего не произошло, может это конечно ещё рано совсем, недавно покрасили немецкими красками очень симпатично получилось. Особенностью нашего дома является его стопроцентная натуральность, в доме всегда приятный воздух, мы сделали очень достойный выбор. Работники знают своё дело и делают его на все 100! Сейчас уже все работы полностью закончены. Конечно за это время мы уже сами стали «строителями»)). Дом имеет законченный вид, делимся фотками. Можем подкинуть пару советов о которых мы и не знаю до начала стройки. Пишите в личку.
Подробнее на Отзовик:
https://otzovik.com/review_9038999.html
Вот это я называю дом из клееного бруса под ключ. Дороговато конечно, зато, заказал и не о чем не думаешь, и над душой не стоишь. Спасибо кстати, что посоветовали брать клееный брус большего сечения. Теперь не надо заморачиваться по поводу утепления.
Заказал дом из клееного бруса зимой 2019 года, на всё про всё от заключения договора до кровли ушло 3 месяца, фундамент был готов до этого. К покраске весной готова))
Ваша заявка отправлена. Менеджер свяжется с Вами в ближайшее время.